Höhe | 784 m |
Hotel |
|
Betten gesamt | 2 |
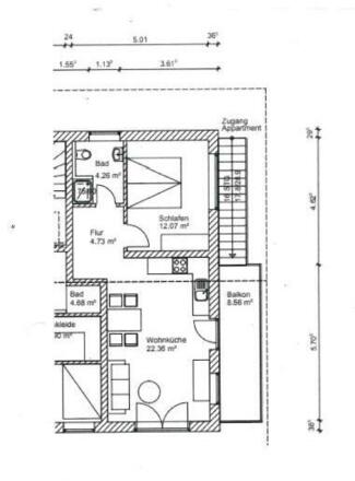
Ferienwohnung Seestadel

Quelle: Tourist Information Schwangau
Die Unterkunft
Neu erbaute Ferienwohnung, direkt am Forggensee gelegen. Ruhige Lage mit direktem Blick auf den See. Stellplatz für PKW vorhanden.
Bettwäsche, Hand- und Duschtücher, Geschirrtücher, Spültabs, Fahrrad- und Sportgeräte-Abstellraum sind im Preis enthalten.
Waschmaschinen- und Trocknernutzung werden abgerechnet ( je 5,00€ )
Info
Kontakt
Seestr. 60, 87645 Schwangau-Brunnen, Deutschland
entfernt
|
|
+49 (0)8362 9250456 | |
ferienwohnung-anika@t-online.de | |
ferienwohnung-anika.de |
Karte
Anreise
Anfahrt
Anreise von der A 7 folgend in Richtung Füssen, durch Füssen durch in Richtung München, Schwangau passieren und vor der Tankstelle/REWE Markt (Ortsende) links abbiegen bis zum kleinen Kreisverkehr, dort die 2. Abfahrt in Richtung Brunnen. Einfach der Strasse folgen bis zur Seestr. 60
Check-In ab 15:00 Uhr
Check-Out bis 10:00 Uhr
Weitere Informationen
Preise
Im Preis enthalten sind Strom, Wasser, Hand- und Duschtücher, Geschirrtücher, Bettwäsche
Waschmaschine/Trockner je Wasch- bzw. Trocknergang: 5,00 € pro Nutzung